Sterling, CT : Assessor Database
Property Search:
Parcel ID:  Alternate ID:  Owner 1 Name:  Street Number:  Street Name: 
Property Detail:
Parcel ID:  Alternate ID/Map Block Lot:  Card:  Card:  Street Name:  Street Number:  Zoning:  LUC:  Acres: 
10020200
03648-034-004A
2
2
EKONK HILL RD
227
 
Single Family Residence
4.47
Owner Information:
Owner 1 Name: 
HERMONOT RICHARD K + ELENA T
Owner 2 Name: 
 
Street 1: 
227 EKONK HILL RD
Street 2: 
 
City: 
MOOSUP
State: 
CT
Zip: 
06354
Volume: 
78
Page: 
278
Deed Date: 
11-MAY-1998
Dwelling Information:
Living Units: 
1
Style: 
GAMBREL
Exterior Wall: 
 
Story Height: 
2.0
Attic: 
NONE
Basement: 
CRAWL
Rec Room: 
0
Finished Basement Area: 
0
Bsmt Gar Spaces: 
0
Heating System: 
OIL/HOT WATER
Central Air: 
N
Fireplaces: 
2
Year Built: 
1969
Living Area: 
2556
Unfinished Area: 
0
Rooms: 
7
Bedrooms: 
4
Full Baths: 
2
Half Baths: 
0
Building Information:
Building Number: 
2
Units: 
1
Structure Type: 
MIXED RES/COMM
Grade: 
C-
Identical Units: 
1
Year Built: 
1969
Valuation:
Appraised Land: 
$36,680.00
Appraised Bldg: 
$396,670.00
Appraised Total: 
$433,350.00
Total Assessment: 
$303,350.00
Property Images:
Picture: 
Sketch: 
Out-Buildings:
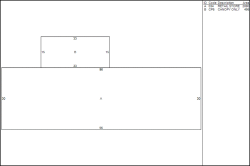
Code: Description: Units: Year Built: Size1: Size2: Area: Grade: Condition:
RP6  ABOVE GROUND  2000  16  AVERAGE (Res) 
AB2  FLAT BARN  1969  30  45  1350  AVERAGE (Res) 
RS7  NO VALUE SHED  1969  48  AVERAGE (Res) 
AH1  1S FRAME OR METAL POULTRY HSE  2015  8640  NORMAL (Comm) 
CP1  CONCRETE PATIO  1969  30  46  1380  AVERAGE (Res) 
RS1  FRAME UTILITY SHED  1969  30  10  300  AVERAGE (Res) 
CP8  CANOPY SS-AVERAGE  2013  30  40  1200  GOOD (Comm) 
RS7  NO VALUE SHED  1969  12  96  AVERAGE (Res) 
RS1  FRAME UTILITY SHED  1969  10  12  120  AVERAGE (Res) 
Building Interior/Exterior Information:
Floor From: Floor To: Area: Use Type: Exterior Walls: Contruction Type: Heating: A/C: Plumbing: Functional Utility:
01  01  2880  RETAIL STORE  FRAME  WOOD FRAME/JOIST/BEAM  HOT AIR  NONE  BELOW NORMAL 
The information delivered through this on-line database is provided in the spirit of open access to government information and is intended as an enhanced service and convenience for citizens of Sterling, CT.
The providers of this database: Tyler CLT, Big Room Studios, and Sterling, CT assume no liability for any error or omission in the information provided here.

Comments regarding this service should be directed to: tim@dbigroomstudios.com

Fri. April 17, 2026 : 03:45 PM : 0.07s : 9mb Big Room Studios