Sterling, CT : Assessor Database
Property Search:
Parcel ID:  Alternate ID:  Owner 1 Name:  Street Number:  Street Name: 
Property Detail:
Parcel ID:  Alternate ID/Map Block Lot:  Card:  Card:  Street Name:  Street Number:  Zoning:  LUC:  Acres: 
00137800
001SC-017-0194
1
1
STERLING RD
486
 
Single Family Residence
0.15
Owner Information:
Owner 1 Name: 
RAVENELLE RAYMOND
Owner 2 Name: 
 
Street 1: 
486 STERLING RD
Street 2: 
 
City: 
STERLING
State: 
CT
Zip: 
06377
Volume: 
27
Page: 
150
Deed Date: 
31-AUG-1956
Dwelling Information:
Living Units: 
1
Style: 
CONVENTIONAL/OLD STYLE
Exterior Wall: 
 
Story Height: 
1.5
Attic: 
NONE
Basement: 
FULL
Rec Room: 
0
Finished Basement Area: 
0
Bsmt Gar Spaces: 
0
Heating System: 
OIL/HOT WATER
Central Air: 
N
Fireplaces: 
0
Year Built: 
1897
Living Area: 
1186
Unfinished Area: 
0
Rooms: 
6
Bedrooms: 
3
Full Baths: 
1
Half Baths: 
0
Valuation:
Appraised Land: 
$16,200.00
Appraised Bldg: 
$84,400.00
Appraised Total: 
$100,600.00
Total Assessment: 
$70,420.00
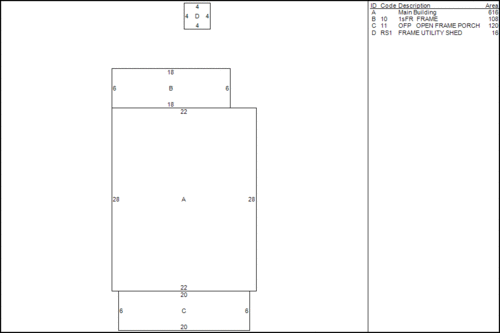
Property Images:
Picture: 
Sketch: 
Out-Buildings:
Code: Description: Units: Year Built: Size1: Size2: Area: Grade: Condition:
RS1  FRAME UTILITY SHED  1900  10  80  AVERAGE (Res) 
The information delivered through this on-line database is provided in the spirit of open access to government information and is intended as an enhanced service and convenience for citizens of Sterling, CT.
The providers of this database: Tyler CLT, Big Room Studios, and Sterling, CT assume no liability for any error or omission in the information provided here.

Comments regarding this service should be directed to: tim@dbigroomstudios.com

Sun. April 12, 2026 : 12:10 AM : 0.05s : 9mb Big Room Studios