Sterling, CT : Assessor Database
Property Search:
Parcel ID:  Alternate ID:  Owner 1 Name:  Street Number:  Street Name: 
Property Detail:
Parcel ID:  Alternate ID/Map Block Lot:  Card:  Card:  Street Name:  Street Number:  Zoning:  LUC:  Acres: 
00091700
03830-022-051A
1
1
PLAINFIELD PIKE
980
 
Single Family Residence
1.84
Owner Information:
Owner 1 Name: 
ODAY AMY L B
Owner 2 Name: 
 
Street 1: 
980 PLAINFIELD PIKE
Street 2: 
 
City: 
STERLING
State: 
CT
Zip: 
06377
Volume: 
139
Page: 
669
Deed Date: 
08/20/2008
Dwelling Information:
Living Units: 
1
Style: 
RANCH
Exterior Wall: 
 
Story Height: 
1.0
Attic: 
NONE
Basement: 
FULL
Rec Room: 
0
Finished Basement Area: 
0
Bsmt Gar Spaces: 
0
Heating System: 
ELECTRIC/ELECTRIC
Central Air: 
N
Fireplaces: 
0
Year Built: 
1989
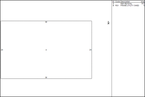
Living Area: 
912
Unfinished Area: 
0
Rooms: 
4
Bedrooms: 
2
Full Baths: 
1
Half Baths: 
0
Valuation:
Appraised Land: 
$28,230.00
Appraised Bldg: 
$87,850.00
Appraised Total: 
$116,080.00
Total Assessment: 
$81,260.00
Property Images:
Picture: 
Sketch: 
Sales History:
Book: Page: Sale Date: Price: Validity: Sale Type:
125  683  08/20/2008  147,000 
139  668  07/08/2013    10 
139  669  07/08/2013  100,000  18 
Out-Buildings:
Code: Description: Units: Year Built: Size1: Size2: Area: Grade: Condition:
RS1  FRAME UTILITY SHED  2007  16  128  AVERAGE (Res) 
RS1  FRAME UTILITY SHED  1994  12  12  144  AVERAGE (Res) 
The information delivered through this on-line database is provided in the spirit of open access to government information and is intended as an enhanced service and convenience for citizens of Sterling, CT.
The providers of this database: Tyler CLT, Big Room Studios, and Sterling, CT assume no liability for any error or omission in the information provided here.

Comments regarding this service should be directed to: tim@dbigroomstudios.com

Sun. April 12, 2026 : 12:10 AM : 0.05s : 9mb Big Room Studios