Sterling, CT : Assessor Database
Property Search:
Parcel ID:  Alternate ID:  Owner 1 Name:  Street Number:  Street Name: 
Property Detail:
Parcel ID:  Alternate ID/Map Block Lot:  Card:  Card:  Street Name:  Street Number:  Zoning:  LUC:  Acres: 
00037800
001SC-16A-0025
1
1
GROVE ST
26
 
Two Family
0.14
Owner Information:
Owner 1 Name: 
MAKIE DAVID + COLLELO JEFFREY
Owner 2 Name: 
 
Street 1: 
24 FLORENCE ST
Street 2: 
 
City: 
MOOSUP
State: 
CT
Zip: 
06354
Volume: 
129
Page: 
664
Deed Date: 
01/14/2010
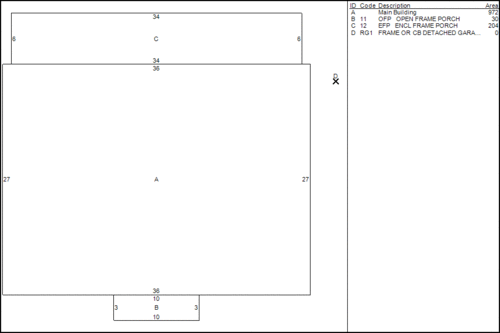
Dwelling Information:
Living Units: 
2
Style: 
TWO FAMILY
Exterior Wall: 
 
Story Height: 
1.7
Attic: 
NONE
Basement: 
FULL
Rec Room: 
0
Finished Basement Area: 
0
Bsmt Gar Spaces: 
0
Heating System: 
OIL/HOT WATER
Central Air: 
N
Fireplaces: 
0
Year Built: 
1900
Living Area: 
1847
Unfinished Area: 
0
Rooms: 
9
Bedrooms: 
5
Full Baths: 
2
Half Baths: 
0
Valuation:
Appraised Land: 
$16,120.00
Appraised Bldg: 
$120,520.00
Appraised Total: 
$136,640.00
Total Assessment: 
$95,650.00
Property Images:
Picture: 
Sketch: 
Sales History:
Book: Page: Sale Date: Price: Validity: Sale Type:
127  506  04/27/2009    29 
110  160  07/29/2005  195,000 
125  832  09/15/2000    14 
129  664  01/14/2010  15 
Out-Buildings:
Code: Description: Units: Year Built: Size1: Size2: Area: Grade: Condition:
RG1  FRAME OR CB DETACHED GARAGE  1900  12  20  240  AVERAGE (Res) 
The information delivered through this on-line database is provided in the spirit of open access to government information and is intended as an enhanced service and convenience for citizens of Sterling, CT.
The providers of this database: Tyler CLT, Big Room Studios, and Sterling, CT assume no liability for any error or omission in the information provided here.

Comments regarding this service should be directed to: tim@dbigroomstudios.com

Sun. April 12, 2026 : 12:13 AM : 0.04s : 9mb Big Room Studios