Sterling, CT : Assessor Database
Property Search:
Parcel ID:  Alternate ID:  Owner 1 Name:  Street Number:  Street Name: 
Property Detail:
Parcel ID:  Alternate ID/Map Block Lot:  Card:  Card:  Street Name:  Street Number:  Zoning:  LUC:  Acres: 
00016100
03832-029-076D
1
1
DEERFIELD DR
19
 
Single Family Residence
1.45
Owner Information:
Owner 1 Name: 
REGNAIERE WAYNE L
Owner 2 Name: 
 
Street 1: 
PO BOX 229
Street 2: 
 
City: 
ONECO
State: 
CT
Zip: 
06373
Volume: 
152
Page: 
969
Deed Date: 
5-OCT-2017
Dwelling Information:
Living Units: 
1
Style: 
A FRAME
Exterior Wall: 
 
Story Height: 
1.0
Attic: 
PART FINISH
Basement: 
FULL
Rec Room: 
0
Finished Basement Area: 
0
Bsmt Gar Spaces: 
0
Heating System: 
OIL/HOT WATER
Central Air: 
N
Fireplaces: 
0
Year Built: 
1964
Living Area: 
1008
Unfinished Area: 
0
Rooms: 
4
Bedrooms: 
2
Full Baths: 
1
Half Baths: 
0
Valuation:
Appraised Land: 
$19,250.00
Appraised Bldg: 
$98,930.00
Appraised Total: 
$118,180.00
Total Assessment: 
$82,730.00
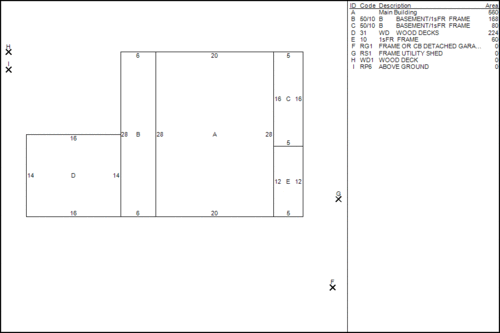
Property Images:
Picture: 
Sketch: 
Sales History:
Book: Page: Sale Date: Price: Validity: Sale Type:
142  620  07/29/2014  172,445  14 
152  232  06/27/2014  10  14 
152  969  10/04/2017  130,100  25 
Out-Buildings:
Code: Description: Units: Year Built: Size1: Size2: Area: Grade: Condition:
RS1  FRAME UTILITY SHED  1964  10  20  200  AVERAGE (Res) 
RG1  FRAME OR CB DETACHED GARAGE  1964  24  24  576  AVERAGE (Res) 
WD1  WOOD DECK  2000  11  11  121  AVERAGE (Res) 
RP6  ABOVE GROUND  2000  AVERAGE (Res) 
The information delivered through this on-line database is provided in the spirit of open access to government information and is intended as an enhanced service and convenience for citizens of Sterling, CT.
The providers of this database: Tyler CLT, Big Room Studios, and Sterling, CT assume no liability for any error or omission in the information provided here.

Comments regarding this service should be directed to: tim@dbigroomstudios.com

Tue. January 6, 2026 : 11:27 PM : 0.03s : 9mb Big Room Studios