Sterling, CT : Assessor Database
Property Search:
Parcel ID:  Alternate ID:  Owner 1 Name:  Street Number:  Street Name: 
Property Detail:
Parcel ID:  Alternate ID/Map Block Lot:  Card:  Card:  Street Name:  Street Number:  Zoning:  LUC:  Acres: 
00005000
03276-010-010A
1
1
BARBER RD
72
 
Single Family Residence
15.08
Owner Information:
Owner 1 Name: 
BRISSON JOHN O
Owner 2 Name: 
 
Street 1: 
72 BARBER RD
Street 2: 
 
City: 
STERLING
State: 
CT
Zip: 
06377
Volume: 
92
Page: 
986
Deed Date: 
6-FEB-2003
Dwelling Information:
Living Units: 
1
Style: 
RAISED RANCH
Exterior Wall: 
 
Story Height: 
1.0
Attic: 
NONE
Basement: 
FULL
Rec Room: 
0
Finished Basement Area: 
228
Bsmt Gar Spaces: 
3
Heating System: 
OIL/WARM AIR
Central Air: 
N
Fireplaces: 
0
Year Built: 
2005
Living Area: 
2052
Unfinished Area: 
0
Rooms: 
5
Bedrooms: 
3
Full Baths: 
2
Half Baths: 
0
Valuation:
Appraised Land: 
$58,620.00
Appraised Bldg: 
$217,200.00
Appraised Total: 
$275,820.00
Total Assessment: 
$193,070.00
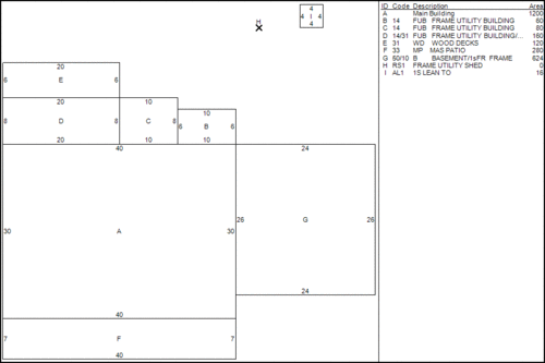
Property Images:
Picture: 
Sketch: 
Sales History:
Book: Page: Sale Date: Price: Validity: Sale Type:
92  986  02/06/2003     
49  43  11/26/1984     
Out-Buildings:
Code: Description: Units: Year Built: Size1: Size2: Area: Grade: Condition:
RP6  ABOVE GROUND  2013  472  AVERAGE (Res) 
RS1  FRAME UTILITY SHED  2006  22  132  AVERAGE (Res) 
AL1  1S LEAN TO  2011  22  176  AVERAGE (Res) 
The information delivered through this on-line database is provided in the spirit of open access to government information and is intended as an enhanced service and convenience for citizens of Sterling, CT.
The providers of this database: Tyler CLT, Big Room Studios, and Sterling, CT assume no liability for any error or omission in the information provided here.

Comments regarding this service should be directed to: tim@dbigroomstudios.com

Sun. April 12, 2026 : 12:13 AM : 0.04s : 9mb Big Room Studios